Vorige | nächste

Zuidstraat 6 Domburg

Objekt speichern
Diese Wohnung ist von uns gemietet

Beschreibung

Nieuw in verhuur: Zuidstraat 6 Domburg

Keurig onderhouden hoekwoning op een ideale locatie, in een rustig straatje in de badplaats Domburg. U loopt zo het bruisende centrum in en ook het strand en de zee bevinden zich op loopafstand.

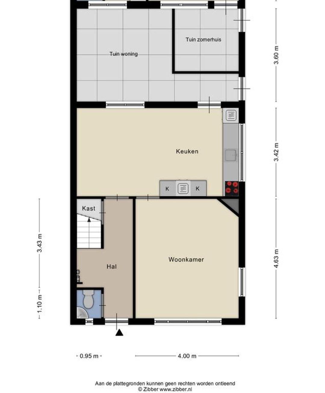
INDELING:

Begane grond:
Entree/hal met toiletruimte, voorzien van wandcloset en fonteintje, meterkast (11 groepen elektra) en trapopgang naar de eerste etage. Tevens is er een trapkast aanwezig. Vanuit de hal is de achtergelegen woonkeuken bereikbaar welke is voorzien van diverse inbouwapparatuur (oven, koel-/vriescombinatie, magnetron, vaatwasser, inductiekookplaat en afzuigkap). Vanuit de lichte keuken zijn ook de achterplaats/tuin en de woonkamer te bereiken.
De voorgelegen woonkamer is eveneens heerlijk licht en onder andere voorzien van sfeervolle ramen met roedeverdeling en een warme houten vloer.

Eerste etage:
Overloop met vaste trap naar de tweede etage en met separate toiletruimte.
Achtergelegen slaapkamer met dubbele openslaande deuren met Frans balkon, deze slaapkamer beschikt momenteel over een ruime kastenwand. Badkamer in aan de voorzijde van de woning voorzien van wastafel, ligbad, designradiator en douche (met Hydro jets en andere opties). Tweede slaapkamer aan de voorzijde, voorzien van kastruimte.

Tweede etage:
Zolderruimte met witgoedopstelling en combi cv.- installatie in een kast, bouwjaar medio 2020.

Huurprijs:
€1.295,- per maand excl. servicekosten

ALGEMEEN
- Enkel voor permanente bewoning;
- Tijdelijke verhuur voor maximaal 24 maanden;
- Voor nutsvoorzieningen wordt maandelijks een voorschotbedrag in rekening gebracht. Definitieve verrekening vindt jaarlijks achteraf plaats;
- Screening maakt onderdeel uit van de selectieprocedure.
- Bij verhuur zal er een waarborgsom worden gevraagd van twee maanden huur.


------------------------

Alle hierboven verstrekte informatie dient te worden beschouwd als een uitnodiging tot bezichtiging van de woning. Aan deze informatie kunnen geen rechten worden ontleend.

De woning is ingemeten middels de branchebrede Meetinstructie. De Meetinstructie is bedoeld om een meer eenduidige manier van meten toe te passen voor het geven van een indicatie van de gebruiksoppervlakte. De Meetinstructie sluit verschillen in meetuitkomsten niet volledig uit, door bijvoorbeeld interpretatieverschillen, afrondingen of beperkingen bij het uitvoeren van de meting. Kandidaat-huurders kunnen een en ander zelf nameten. Verhuurder en zijn makelaar accepteren hierom geen aansprakelijkheid.

Bezichtigingen vinden plaats op afspraak.

Oplevering van de woning is in overleg.
Vollständige Beschreibung lesen

Eigenschaften

Beschreibung

Bezugsfrei
In Absprache

Bau

Art der Wohnung
Einfamilienhaus
Eigenschaftstyp
Eckhaus
Soort bouw
Bestandsgebäude
Baujahr
1961
In aanbouw
Nein

Details

Lage
An ruhiger Strasse, Im Zentrum
Permanente bewoning
ja
Dacheindeckung
Satteldach
Dachmaterial
Töpfe

Oberflächen und Inhalt

Wohnfläche
115 m²
Parzelle
111 m²
Inhalt
365 m³

Einteilung

Anzahl Zimmer
4
Anzahl Schlafzimmer
3
Aantal etages
3
Anzahl der Badezimmer
1
Badkamervoorzieningen
Badewanne, Dampfsauna, Badezimmertisch
Keuken type
Seperate Küche

Isolatie en verwarming

Warmwater installatie
cv ketel

Energielabel

Energielabel
E
Einddatum energielabel
2027-03-21

Aussenbereich

Gartentyp(en)
Rückwärtiger Garten
Hoofdtuin type
Rückwärtiger Garten
Hoofdtuin oppervlakte
24 m²
Hoofdtuin achterom
ja
Landschaft Hauptgarten
Südwesten
Totale oppervlakte
28 m²

Garage

Garagesoorten
geen garage

Parkmöglichkeiten

Faciliteit
öffentliche Parkplätze, Parkscheine
Vollständige Eigenschaften zeigen

Alle Fotos

Dieses Objekt teilen

INTERESSIERT? ODER FRAGEN? Kontakt
1